

Juhli luonnon helmassa ainutlaatuisessa tunnelmassa, lähellä kaupungin palveluita.
Ainutlaatuinen miljöö takaa onnistuneet ja ikimuistoiset muistot ja kuvat juhlapäivästäsi.
Tuo omat juomat ja ruuat. Tai anna meidän kumppaneiden hoitaa kaikki puolestasi. Sinä päätät.
Juhlatila sijaitsee loistavalla paikalla Ainolanpuiston purojen keskellä, kävelymatkan päässä kirkosta ja Oulun keskustasta.
Tunnelmallinen hirsitalo Ainolanpuistossa. Ihanteellinen valinta juhliin, joissa arvostetaan laatua.
Koe Sahasaaressa Unelmahäät
Me uskomme, että elämän tärkeimpänä päivänä teidän ainoa tehtävänne on nauttia jokaisesta hetkestä. Siksi olemme luoneet kokonaisuuden, jossa yhdistyvät upea miljöö, saumaton palvelu ja huippuluokan kumppanit.
- ✨ UPEA MILJÖÖ & TÄYDELLINEN SIJAINTI
Sijaitsemme Oulun kauneimmissa maisemissa, vain lyhyen ja miellyttävän kävelymatkan päässä kirkosta. Vieraidenne siirtyminen juhlaan on vaivatonta ja eleganttia, ilman huolta kuljetuksista tai aikatauluista.
- ✨ UPEA MILJÖÖ & TÄYDELLINEN SIJAINTI
- 📸 IKIMUISTOISET VALOKUVAT VAIVATTOMASTI
Henkeäsalpaava ympäristömme toimii täydellisenä ja luonnollisena taustana hääkuvillenne. Voitte ikuistaa päivän tärkeimmät hetket rauhassa samalla, kun vieraat asettuvat mukavasti juhlapaikalle.
- 📸 IKIMUISTOISET VALOKUVAT VAIVATTOMASTI
- 💎 HUIPPUTASON KUMPPANIT JUHLANNE TUKENA
Teemme yhteistyötä vain parhaiden kanssa. Morsiusliike Niinatar (www.niinatar.fi) varmistaa asusi täydellisyyden, ja ensiluokkainen catering-kumppanimme loihtii juhliinne unohtumattomat, herkulliset makuelämykset.
- 💎 HUIPPUTASON KUMPPANIT JUHLANNE TUKENA
- 🎉 KESKITTYKÄÄ JUHLIMAAN – ME HOIDAMME LOPUT!
Meidän tehtävämme on huolehtia siitä, että kaikki sujuu täydellisesti taustalla. Voitte itse rentoutua, nauttia ja luoda elinikäisiä muistoja yhdessä rakkaidenne kanssa.
Luo Unohtumattomia Muistoja Ainolanpuistossa!
Tuo omat ruuat ja juomat, tai tilaa pitopalvelut juhliisi meidän kautta

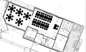
Tilaa jopa 70 vieraalle. Tilassa sähköflyygeli, iso TV ja huippu Genelec äänentoisto ja akustiikka
Suojaisa sisäpiha ja useat terassit tuovat luonnnon aidosti osaksi juhliasi






Kysy vapaita aikoja ja varaa
Posti: info@sahasaari.com
Puhelin: +358 445562940
catering@uniresta.fi
044 3500 427 (arkisin klo 8.30 – 15.30)
